Water demineralization cartridge filter PDF 200
When connected to the water supply system, the demineralization cartridge filters are used to produce demineralised water for health industry, clinical medicine, laboratories, and elsewhere.
Conductivity limits required can be assessed based on metering of treated water volume or determined exactly by means of integrated conductivity metering instrument, which can be supplied upon order as a filter accessory.
As soon as the specified quantity of water (see diagram) has been treated, or if a conductivity limit has been reached, the filter cartridge containing the exhausted ion exchanger can be replaced with a new cartridge in a simple way. To detect the period of renewal, a chemical analysis of water is necessary. The analysis must be ensured by the operator; it may be ordered with the manufacturer as well. The professional recovery of the cartridge is provided by the manufacturer. The cartridges circulate in a one-for-one system.
|
Features:
|
Supply:
|
Special acessories:
|
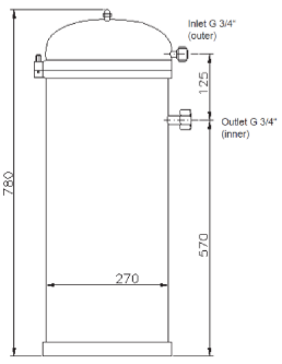
Drawing

Recommended connection scheme
