Menu
  • Vítejte
      • O společnosti
      • Profil společnosti
      • Environmentální politika (EMS)
      • Certifikace a normy
      • Projekty EU
      • Ke stažení
      • Zajímavosti
  • Produkty
      • Kotle na biomasu
      • Tlakové nádoby stabilní
      • Výměníky tepla
      • Ohříváky vody
      • Zařízení pro úpravu vod
      • Beztlaké nádoby
      • Ostatní produkty
      • Elektrárna na biomasu
      • Pozinkované nádoby pro domácí vodárny
  • Reference
      • Investiční akce
      • Realizace vlastních technologií
      • Tlakové nádoby
      • Kotelny na biomasu
      • Konstrukce a projekce
  • Servis
  • Kontakty
      • Adresy
  • Volné pozice
      • Benefity
      • Technickohospodářské profese
      • Dělnické profese
      • Brigády
  • Uživatelské menu
      • Přihlásit se
      • Vytvořit účet
  • Czech (CZ)
  • German (DE)
  • Russian (RU)
  • Slovak (SK)
  • English (UK)
STEP TRUTNOV

STEP TRUTNOV

    • Telefon:
    • +420 499 407 407
    • Sídlo společnosti:
    • Horská 695, 541 02 Trutnov
    • Adresa výrobního závodu
    • Horská 695, 541 02 TRUTNOV 4
  • Titulní stránka |
  • Produkty |
  • Tlakové nádoby stabilní |
  • Velké Akumulační nádoby

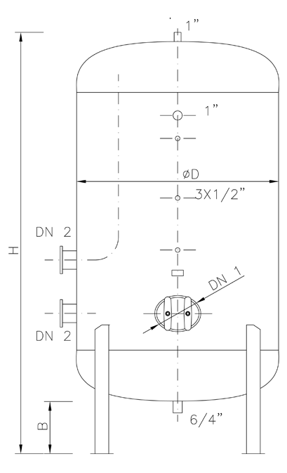
Velké Akumulační nádoby

 

Technické parametry

KatalogovéObjemDHADN1Hmotnost
číslo[l][mm][mm][mm][mm][kg]
.0017 20000 2000 7300 7010 420x320 3200
.0018 30000 2200 8800 8510 420x320 5050
.0019 40000 2400 10300 9910 420x320 6530
.0020 50000 2400 12400 12010 420x320 7920
.0021 60000 2400 14260 13870 420x320 8460
.0022 70000 3000 11050 10660 420x320 9950
.0023 80000 3000 12450 12060 420x320 10113
.0024 90000 3200 12060 11760 420x320 10520
.0025 100000 3400 11980 11680 420x320 11140
.0026 130000 3600 14900 14050 420x320 19600
.0027 150000 3800 15350 14550 420x320 21800
.0028 200000 4000 17800 17000 420x320 25000

POZOR: Není-li ve vnitřní nádobě přetlak alespoň 0,4MPa, nesmí být ve vnější nádobě přetlak vyšší než 0,4MPa
Kromě typových výrobků uvedených v katalogu dodáváme i atypická provedení s průměrem nádrže a velikostí zařízení podle specifikací zákazníka.

Výkresy

velka n s

velka b s


Stáhnout DWG

STEP TRUTNOV © 2026
  • Vítejte
  • Produkty
  • Reference
  • Servis
  • Kontakty
  • Volné pozice
  • Uživatelské menu

Login form