Pozinkované nádoby pro domácí vodárny, STEP - POZ, 80-900 l
Sériově vyráběné stojaté nádoby s použitím pro domácí vodárny, přečerpávací stanice apod. jsou vhodné pro všechny druhy čerpadel, kterým odpovídají svými konstrukčními parametry (objem + max.pracovní přetlak). Svou funkcí zabezpečují plynulý rozvod vody, převážně z vlastní studny, v potřebném rozsahu. Tím, že udržují zásobu vody pro okamžitou spotřebu, prodlužují životnost čerpadla. Plynový a vodní prostor není oddělen. Dle požadavku zákazníka, zejména tam, kde to vyžaduje celkové estetické řešení, je možno dodat nádobu opatřenou na vnějším povrchu barevným nátěrem.
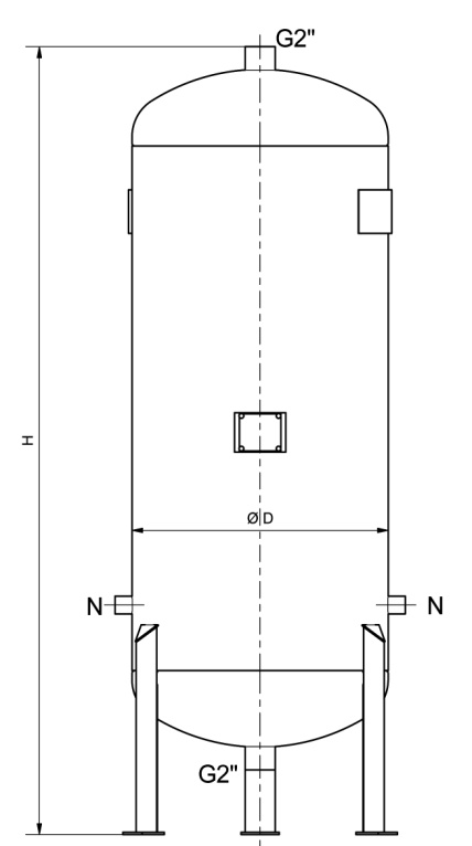
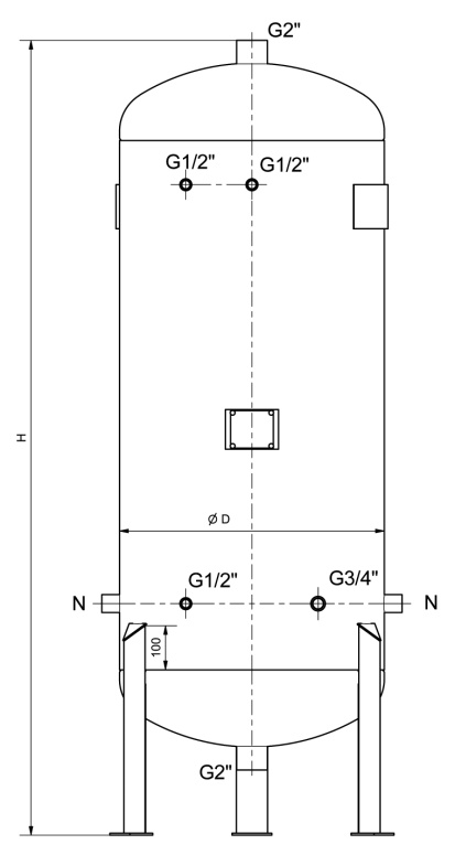
Nádoby jsou opatřeny hrdly pro vstup a výstup, návarky pro odkalení a odvzdušnění. Jsou oboustranně žárově zinkovány a jsou vyráběny dle EN13445 a DIN EN ISO 3834-2. Zabezpečují plynulý rozvod vody a udržují tlak vody pro okamžitou spotřebu.
Nádoby jsou vyráběny na 10 bar. Jiné provedení je možné na základě poptávky.
V případě individuálních požadavků na jiný objem nádoby, pracovní tlak, teplotu, připojení atp., Vám rádi zpracujeme cenovou nabídku.
Orientační návrh objemu pozinkované nádoby
Pro návrh doporučujeme vycházet z následující tabulky:
| Spotřeba vody za den | Počet osob v zásobovaném objektu | Průměrná spotřeba vody | Průměrná spotřeba vody včetně zahrady | Špičková spotřeba vody | Velikost POZ /dům bez zahrady | Dům se zahradou | |
|---|---|---|---|---|---|---|---|
| l/den/osoba | Počet osob | m3/h | m3/h | m3/h | l | l | |
| Byt pro 2 osoby | 100 | 2 | 0,7 | 1,2 | 2,7 | 80 | 150 |
| RD pro 1 rodinu | 150 | 4 | 0,9 | 1,5 | 3,0 | 100 | 200 |
| RD pro 2 rodiny | 150 | 8 | 1,5 | 2,7 | 4,8 | 200 | 400 |
| RD pro 4 rodiny | 150 | 16 | 2,4 |
4,8 | 6,0 | 400 | 750 |
| Zalévání zahrady | 250/100m2 | 0,6 | 1,2 | 0,9 |
V ostatních případech doporučujeme odvodit velikost z výše uvedené tabulky, případně konzultovat s odpovědným projektantem.
rozměrová tabulka
| Katologové číslo (Pracovní tlak 10 bar) | Objem (l) | Průměr D (mm) | Výška H (mm) | Připojení N1 | Hmotnost kg |
|---|---|---|---|---|---|
| SP-POZ01 | 80 | 400 | 1000 | G 1" | 37 |
| SP-POZ02 | 100 | 400 | 1200 | G 1" | 43 |
| SP-POZ03 | 150 | 500 | 1100 | G 5/4" | 53 |
| SP-POZ04 | 200 | 500 | 1350 | G 5/4" | 62 |
| SP-POZ05 | 330 | 600 | 1550 | G 2" | 97 |
| SP-POZ06 | 400 | 600 | 1800 | G 2" | 118 |
| SP-POZ07 | 500 | 800 | 1350 | G 2" | 125 |
| SP-POZ08 | 600 | 800 | 1550 | G 2" | 141 |
| SP-POZ09 | 750 | 800 | 1850 | G 3" | 164 |
| SP-POZ10 | 900 | 800 | 2150 | G 3" | 188 |
Teplota v plášti je do 50° C. Určeno pro studenou vodu.