Kotle na spalování celých balíků slámy (600-6250 kW)
Typ, výkonový rozsah: STEP-KS 600 ÷ 6,250 kW
Použití
Toto zařízení na spalování celých balíků slámy je určeno pro vytápění větších objektů (průmyslové objekty, obecní výtopny, zemědělské objekty, hotely, provozovny atd.)
Varianty provedení kotle
Na přání zákazníka lze dodat kotle v základním provedení teplovodním, horkovodním a parním.
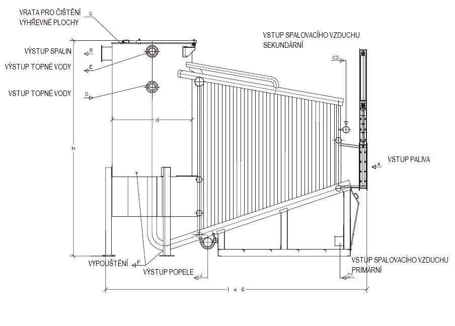
Popis kotle
Zařízení se skládá z vodotrubné spalovací komory nad upraveným přesuvným roštem a žárotrubného vertikálního výměníku. Spalovací komora je vodotrubná membránová. Přední část je opatřena vstupním otvorem pro celé balíky slámy, které jsou nad přední část roštu zasouvány do topeniště speciálním zařízením.
Kotel je dodáván s kompletní výstrojí včetně izolace a oplechování. Na konci roštu je umístěn vyhrnovací šnek pro popeloviny. Spaliny vystupují ze spalovací komory, vstupují dole do vertikálního spalinového výměníku. Výstupní otvor pro spaliny z výměníku se nachází nahoře a lze jej přizpůsobit poloze dle projektu kotelny.
Řízení a regulace
Automatická regulace výkonu je skoková s plynulým přejížděním a je určována hodnotou podtlaku ve spalovací komoře a počtem dávek paliva do topeniště v závislosti na výstupní teplotě vody z kotle. Chod sekundárního ventilátoru je řízen dle frekvenčního měniče otáček v závislosti na % O2 ve spalinách. Spalinový ventilátor na odtahu spalin s frekvenčním měničem otáček reguluje nastavený podtlak v komoře.
Palivo
Hranaté balíky slámy (sláma řepková, pšeničná, energetický šťovík Uteuša), max. průřezu 1250 x 1200 mm a délky max. 2400 mm, o vlhkosti max. 20 %, středně slisované. Obsah nespalitelných látek (prach, písek) max. 0,4%. popelnatost max. 6%. Balíky slámy musí být celé svázané a nedeformované, vlhkost balíků musí být homogenní. Pro konkrétní průřez balíku slámy je nutné konstrukčně upravit vstupní otvor paliva případně spalovací komoru. Při změně druhu paliva musí být vždy seřízeno spalování. Rozměr balíků lze konstrukčně přizpůsobit podle požadavku zákazníka.
Odpopelnění a čištění kotle
Popel je z topeniště vynášen automaticky pomocí příčného šnekového dopravníku umístěného v zadní části topeniště. Čištění výhřevných ploch je mechanické pomocí speciálních kartáčů a pro vybírání popelovin jsou zabudována lehce demontovatelná dvířka a vrata.
Doprava paliva; Hydraulická doprava paliva
K automatické dopravě paliva (balíků slámy) do kotle se využívá pracovní plošiny s tlačnou deskou, kterou pohybuje hydraulický píst. Pracovní plošina je začleněna do regulačního okruhu kotle, to znamená, že pracuje automaticky při požadavku na přiložení paliva do kotle. Naložení balíku slámy na pracovní plošinu probíhá např. vysokozdvižným vozíkem s vidlemi nebo podobným manipulačním zařízením případně jeřábovou dráhou, která balík ze skladu paliva převeze do kotelny a uloží na pracovní plošinu před tlačnou desku.
Při požadavku na přiložení paliva do kotle (balík slámy v kotli dohořel, signalizace čidla o prázdném prostoru v přední části spalovací komory) se sklopí sklopné víko do otevřené polohy. Po sklopení víka se automaticky balík slámy přemístí pomocí hydraulického pístu s tlačnou deskou z pracovní plošiny na sklopné víko. Následně se sklopné víko uzavře, balík slámy je v kotli přiložen ve svislé poloze a připraven pro spalování.
Parametry kotle
| Výkon kotle | [kW] | 600 | 1000 | 1500 | 2000 | 2500 | 3000 | 4000 | 5000 |
|---|---|---|---|---|---|---|---|---|---|
| Max. teplota | [°C] | 110 | |||||||
| Max. pracovní tlak | [bar] | 6 | |||||||
| Účinnost kotle při jmenovitém výkonu | [%] | 86 - 91 | |||||||
| Teplota spalin na výstupu z kotle | [°C] | 160 | |||||||
| Spotřeba paliva* | [kg.h-1] | 174 | 291 | 436 | 581 | 726 | 872 | 1732 | 2166 |
| Množství spalin | [Nm3.h-1] | 1577 | 2629 | 3943 | 5257 | 6571 | 7886 | 9364 | 11704 |
| Délka kotle | [m] | 4,9 | 5,4 | 5,8 | 6,2 | 6,5 | 6,8 | 7,2 | 7,6 |
| Šířka kotle | [m] | 2,1 | 2,1 | 2,1 | 2,1 | 2,5 | 2,5 | 3,0 | 3,0 |
| Výška kotle | [m] | 4,5 | 4,5 | 4,7 | 5,1 | 5,4 | 5,7 | 6,1 | 6,5 |
| Hmotnost kotle | [kg] | 12400 | 13200 | 14000 | 14800 | 16500 | 18400 | 20900 | 24100 |
| Objem vody v kotli | [m3] | 3,60 | 4,75 | 5,85 | 7,10 | 9,30 | 10,90 | 14,50 | 19,40 |
*při jmenovitém výkonu a vlhkosti obilné slámy 20% a čistých výhřevných plochách.
Výkres

Schéma dopravy paliva:

02 –Přesuvný stůl
03 – Vstupní hrdlo paliva s chlazeným uzávěrem