Котлы для сжигания древесной щепки мощностью от 600 – до 5000 кВт
Тип котла и пределы мощности: STEP- KВ 600 ÷ 5000 кВт
Применение
Эти котлы для сжигания биомассы (смесь опилок, обрезков, коры, древесной щепки, промышленной стружки и др.) предназначены преимущественно для отопления объектов, где используется много тепла, промышленные и сельскохозяйственные сооружения, коммунальное отопление, гостиницы, производственные и другие объекты.
Варианты конструкции котлов
Согласно требованиям заказчика возможно поставить котёл в основном варианте тепловодном, а также водогрейном или паровом, без или с пароподогревателем.
Описание котла
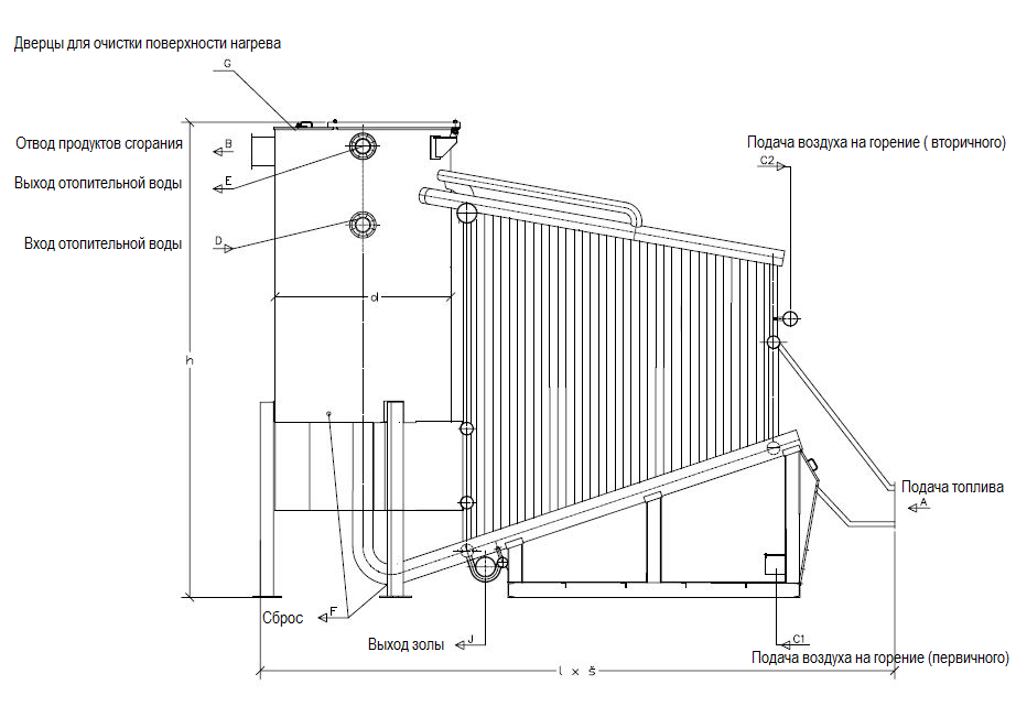
Устройство котла составлено из водотрубной камеры сгорания над приспособленной подвижной решёткой и жаротрубного вертикального обменника. Камера сгорания водотрубная с перегородкой. Передняя часть котла снабжена горловиной для подачи топлива, проталкиваемого на переднюю часть решётки с помощью гидравлического механизма подачи. Входная часть горловины нагревается отопительной водой с целью просушки поданного топлива. Котёл поставляется с комплектом оборудования, включая изоляцию и обшивку из листового металла. Пепел удаляется из котла в конце решётки шнековым механизмом или другим механическим приспособлением. Продукты сгорания выходят из камеры сгорания и в нижней части входят в вертикальный обменник продуктов сгорания. Выходное отверстие для продуктов сгорания из обменника находится на верхней части и его возможно приспособить в зависимости от проекта котельной.
Управление и регулирование котла
Автоматическое регулирование мощности котла скачкообразно с плавным переходом и определяется параметрами разрежения и количеством топлива в камере сгорания в зависимости от температуры воды на выходе из котла. Работа вторичного вентилятора управляется частотным преобразователем оборотов в зависимости от % О2 в продуктах сгорания. Вентилятор для отвода продуктов сгорания согласно частотному преобразователю оборотов управляет разрежением в камере сгорания.
Топливо
Древесная биомасса (смесь опилок, обрезков, щепки, стружки и др.) с минимальной теплотворностью 10,1 ед. изм./кг и влажностью до 40% , например, бук, берёза, дуб или ель. Содержание несгораемых веществ (пыль, песок и др.) максимально 0,4 %. Максимальные размеры древесных отходов до ø 40 мм и длиной 100 мм.
Удаление пепла и очистка котла
Пепел из топки котла вынесен автоматически с помощью поперечного шнекового конвейера, размещённого в задней части топки. Очистка обогревательных площадей производится вручную или механически с помощью специальных щёток и для набирания пепла встроены легко съёмные ворота или дверца.
Подача топлива
Разгрузка бункера.Вынос топлива из бункера производится с помощью переменного движения аксиально-управляемого толкающего штока, который снабжён большим количеством выносных клинов. Толкающий шток приведён в действие с помощью гидравлического цилиндра. Конструкция системы подачи топлива обеспечивает, чтобы клины, при движении штока в направлении перепада топлива в гидравлический механизм подачи, принимали топливо и при движении в обратном направлении его не принимали. Этим способом топливо проникает против движения толкающего штока и попадает на поперечный гидравлический механизм подачи топлива, откуда дальше транспортировано в камеру сгорания котла.
Гидравлический механизм подачи топлива
Механизм подачи действует по одинаковому принципу, как и вынос топлива из бункера, и включён в управляющий контур котла, это значит, что включение и выключение механизма зависит от отбора тепла из котла (в зависимости от температуры воды на выходе из котла). Преимуществом данной системы является то, что в двух местах в стене между пространством бункера и котла и между механизмом дополнения топлива и топкой происходит полное отделение потока топлива. Это происходит так, что лапки, которые снабжёны режущими ножами, при окончании каждого дозирующего цикла, а также при остановке механизма, остановятся напротив мощного противоположного ножа, который установлен на вышеуказанном месте. Это обеспечивает безопасную охрану не только против обратного перегорения, но происходит то, что большие куски дерева и коры, находящиеся в топливе, разрезаны и без проблем доставлены в камеру сгорания котла.
Параметры котлов
| Мощность котла | kW | 600 | 1000 | 1500 | 2000 | 2500 | 3000 | 4000 | 5000 |
|---|---|---|---|---|---|---|---|---|---|
| Мощность котла | °C | 110 | |||||||
| Макс. давление | бар | 6,0 | |||||||
| Эффективность котла | % | 86 - 90 | |||||||
| Темр.газов на вых.котла | °C | 165 | |||||||
| Расход топлива* | кг/час-1 | 260 | 433 | 650 | 866 | 1083 | 1300 | 1732 | 2166 |
| Объём вых. Газов* | Нм3/час3.h-1 | 1404 | 2341 | 3511 | 4682 | 5852 | 7022 | 9364 | 11704 |
| Длина котла | m | 4,9 | 5,4 | 5,8 | 6,2 | 6,5 | 6,8 | 7,2 | 7,6 |
| Ширина котла | m | 2,1 | 2,1 | 2,1 | 2,1 | 2,5 | 2,5 | 3,0 | 3,0 |
| Высота котла | m | 4,5 | 4,5 | 4,7 | 5,1 | 5,4 | 5,7 | 6,1 | 6,5 |
| Вес котла | кг | 12400 | 13200 | 14000 | 14800 | 16500 | 18400 | 20900 | 24100 |
| Объём воды в котле | m3 | 3,60 | 4,75 | 5,85 | 7,10 | 9,30 | 10,90 | 14,50 | 19,40 |
*номинальная мощность при влажности топлива 40% и чистых обогреваемых поверхностях.
PИСУНКИ

Схема подачи топлива.

02 – Гидравлический механизм подачи топлива
03 – Гидравлический агрегат