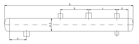
Splitters / collectors
The splitters and collectors are made as heating system components. They serve for splitting or combining multiple heating branches. They are produced depending on a source of heat for overpressures from 0.6 do 1.0 MPa, and temperatures up to 105°C. The parametres can be increased upon customer’s request.
Splitters and collectors can be supplied based on customer’s requirements and special calculation.
Drawing
