Kessel zur verbrennung von ganzen strohballen step-ks 100-1000 kw
Typ, Leistungsbereich: STEP-KS 100 ÷ 1000 kW
Anwendung
Diese Einrichtung für Biomasseverbrennung (Verbrennung von ganzen Strohballen in vertikaler Lage) ist für das Heizen von kleineren Objekten (Industrieobjekte, Gemeindeheizwerke, Landwirtschaftsobjekte, Hotels, Betriebsstätten usw.) bestimmt. Die Heizanlage kann auch für die Verbrennung von Holzabfall (Hackschnitzel, Rinde, Pellets) Getreide, Hede usw. umgestaltet werden.
Varianten der Kesselausführung
Nach Kundenwunsch können die Kessel in der Warmwasser-, Heißwasser- und Dampfgrundausführung geliefert werden.
Kesselbeschreibung
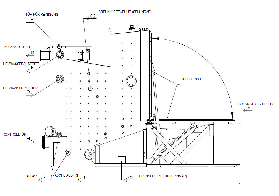
Der Kessel STEP-KS besteht aus einer wassergekühlten Verbrennungskammer, dem verschiebbaren Feuerungsrost und einem vertikalen Abgaswärmetauscher. Die Verbrennungskammer ist durch eine wassergekühlte Trennwand in zwei Teile getrennt. Der vordere Teil dient zur Aufstellung der Strohballen in die vertikale Lage. Hinter der Trennwand befindet sich der zweite hintere Teil der Kammer, in dem es zur Brennstoffverbrennung kommt. Die Verbrennungskammer ist auf dem verschiebbaren hydraulisch betätigten Schrägrost positioniert. Unten am Ende des Feuerungsrostes befindet sich ein Spiralförderer für die automatische Entaschung. Die aus der Verbrennungskammer austretenden Abgase werden nach unten längst des Mantels des Abgaswärmetauschers geführt, wo sie in den vertikalen Abgaswärmetauscher eintreten. Die Austrittsöffnung für die Abgase aus dem Wärmetauscher befindet sich oben und es ist möglich ihre Lage nach dem Projekt der Kesselanlage anzupassen. Der Kessel wird einschließlich der Komplettausstattung, Isolierung und Blechbekleidung geliefert.
Steuerung und Regelung
Die automatische Leistungsregelung ist sprunghaft mit kontinuierlichem Absuchen und wird mit dem Unterdruckwert in der Kammer und mit der Zahl der Feuerungsrostbewegungen in der Abhängigkeit von der Ausgangstemperatur des Zirkulationswassers aus dem Kessel bestimmt. Die Primärluft wird unter den Feuerungsrost von beiden Seiten der Kesselfeuerung zugeführt, die Sekundärluft wird mittels des Luftlüfters in die Verbrennungskammer zugeführt, um einen ordentlichen Brennstoffbrand bei minimaler NOx und CO Bildung zu erreichen. Der Abwärmelüfter reguliert den eingestellten Unterdruck in der Kammer im Abgasabzug mittels des Umlauffrequenzwandlers und saugt die Primärluft unter den Feuerungsrost.
Brennstoff
Quaderförmige Strohballen (Raps-, Getreidestroh, Hanf, energetischer Sauerampfer Uteuša), mit max. Querschnitt 1250 x 800mm und Länge max. 2200mm, Feuchtigkeit max. 20 %, mittelgepresst, Aschengehalt max. 5%. Der Gehalt von unverbrennbaren Stoffen (Staub, Sand) max. 0,4%. Die Strohballen müssen völlig gebunden, nicht verzerrt und die Feuchtigkeit von Strohballen muss homogen sein. Für einen konkreten Querschnitt des Strohballens ist es nötig, die Eintrittsöffnung für den Brennstoff eventuell die Verbrennungskammer konstruktionsmäßig anzupassen. Im Falle der Änderung der Brennstoffart muss immer eine Verbrennungsweise eingestellt werden. Das Format der Strohballen kann nach Kundenwunsch angepasst werden.
Entaschung und Kesselreinigung
Die Asche wird aus der Kesselfeuerung automatisch mittels des Querspiralförderers, der in dem hinteren Teil der Kesselfeuerung positioniert ist, hinausgetragen. Die Reinigung der Heizflächen mit Hilfe von Sonderbürsten ist mechanisch und für das Herausnehmen der Asche sind mühelos demontierbare Tür und Tor eingebaut.
Brennstoffförderung; Hydraulische Brennstoffförderung
Für die automatische Brennstoffförderung (Strohballen) wird eine Arbeitsbühne mit einer Druckplatte verwendet, die vom hydraulischen Kolben bewegt wird. Die Arbeitsbühne ist in den Kesselregelkreis eingegliedert, d.h., sie arbeitet automatisch bei der Anforderung des Brennstoffzulegens in den Kessel. Die Beladung des Strohballens auf die Arbeitsbühne verläuft z.B. mithilfe eines Gabelstaplers oder einer ähnlichen Beförderungseinrichtung bzw. einer Kranfahrbahn, die den Strohballen aus dem Lager nimmt, in die Kesselanlage überführt und ihn schließlich auf die Arbeitsbühne vor die Druckplatte hinterlegt.
Bei der Anforderung des Brennstoffzulegens (ausgebrannte Strohballen im Kessel, ein Fühler im vorderen Teil der Verbrennungskammer signalisiert einen Leerraum) kippt ein umklappbarer Deckel in die offene Lage. Nach dem Deckelkippen wird der Strohballen automatisch mithilfe des hydraulischen Kolbens mit einer Druckplatte aus der Arbeitsbühne auf den umklappbaren Deckel. verlegt. Folgendermaßen wird der umklappbare Deckel geschlossen, der Strohballen wird in den Kessel in vertikaler Lage zugelegt und ist somit für die Verbrennung vorbereitet.
Kesselparameter
| Kesselleistung | [kW] | 100 | 350 | 1000 |
|---|---|---|---|---|
| Max. Temperatur | [°C] | 110 | ||
| Max. Arbeitsdruck | [bar] | 4,0 | ||
| Kesselwirkungsgrad bei der Nennleistung | [%] | 86 - 90 | ||
| Tabgasetemperatur am Austritt aus dem Kessel | [°C] | 180 | ||
| Brennstoffverbrauch* | [kg.h-1] | 52 | 104 | 178 |
| Abgasemenge* | [Nm3.h-1] | 402 | 804 | 1378 |
| Kessellänge | [m] | 5,1 | 5,3 | 5,5 |
| Kesselbreite | m | 1,8 | 1,8 | 1,8 |
| Kesselhöhe | [m] | 3,7 | 3,7 | 3,7 |
| Kesselgewicht | [kg] | 5590 | 5920 | 6410 |
| Wasservolumen im Kessel | [m3] | 1,85 | 2,10 | 2,45 |
*bei der Nennleistung und Feuchtigkeit des Getreidestrohes 20% und sauberen Heizflächen
Zeichnung

Schematische Darstellung der Brennstofförderung

02 – Druckplatte
03 – Umklappbarer Deckel